Mehrgenrationenwohnen Steinwegvorstadt


Wettbewerb
Coburg, D
2023
820 m²
mit Modersohn & Freiesleben Architekten
Visualisierungen: Alzbeta Novakova
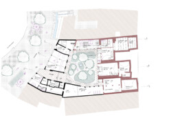
Städtebaulich fügt sich das Mehrgenerationenwohnen in den Blockrand und seinen Kontext ein, indem die historische Baulinie aufgegriffen wird. Das für die Coburger Altstadt mit oftmals traufständigen Sattel- bzw. Mansarddächern und ihren charakteristischen Zwerchhäusern prägende Stadtbild wird aufgenommen und interpretiert. Ein Ensemble aus Giebeln, Gauben und Zwerchhäusern antworten auf diese ortstypische Begebenheit und erhält bzw. stellt den Charakter der Altstadt wieder her. Die Steinwegvorstadt lebt wieder von Ihrem Image der "produktiven Stadt". Nutzungseinheiten sind hinzugekommen, die für die traditionelle Attraktivität der Altstadt einen Beitrag leistet. Die Qualität des Hofes mit seiner, für die Größe des Wohnkomplexes entsprechend, angemessenen Proportion und Belichtung steht im Fokus des Entwurfes
und dient primär der internen Hausgemeinschaft. Die Altstadt, dessen Verdichtungsgrad sehr hoch ist, verlangt das Einführen von „cooling effects“ und maximaler Entsiegelung, um auch in den nächsten Jahrzehnten einen lebenswerten Wohnraum in der Altstadt zu schaffen. Versiegelte Flächen werden somit zurückgeführt und durch begrünte Flächen ersetzt. Der Ansatz ist eine flexible, attraktive Mischung von Wohneinheiten, bei dem der Innenhof das zentrale Herzstück ist. In jeder Wohneinheit befindet sich ein zum Hof orientierter ‚Grüner Raum‘ bzw. Freiraum. Es besteht ein vielseitiges Wohnungsangebot für Single, Paare, Wohngemeinschaften, Cluster-Wohnen und Familien.








