Haus am See


Umbau und Erweiterung für privat
Berlin, D
ongoing seit 2022
310 m²
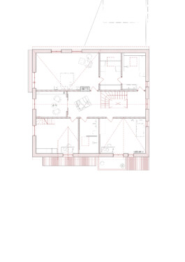
Bei der Bauaufgabe handelt es sich um den Umbau und die Modernisierung eines Einfamilienhauses aus dem Jahre 1937 in Berlin - Zehlendorf. Das Grundstück ist rechteckig und misst eine Fläche von ca. 680 m², wobei das Haus eine Grundfläche von ca. 156 m² besitzt. Zusätzlich gibt es einen Garagenanbau mit 18 m². Der Keller und das Erdgeschoss sind in Massivbauweise errichtet. Das ursprüngliche, im Krieg zerstörte Dach wurde 1977 Jahren durch einen neuen Dachaufbau wiederhergestellt und soll nun um ein Dachgeschoss mit zwei Zwerchgiebeln ersetzt werden.







